Search

Leave a Message

Thank you for your message. We will be in touch with you shortly.

Explore Our Properties

Property Description

Enjoy miles of marsh and water views from this perfect private coastal getaway! This beautiful home features a wraparound porch with open deck, ideal for relaxing and enjoying the stunning views. The exterior has been freshly painted, decking updated where needed, and new outdoor ceiling fans.
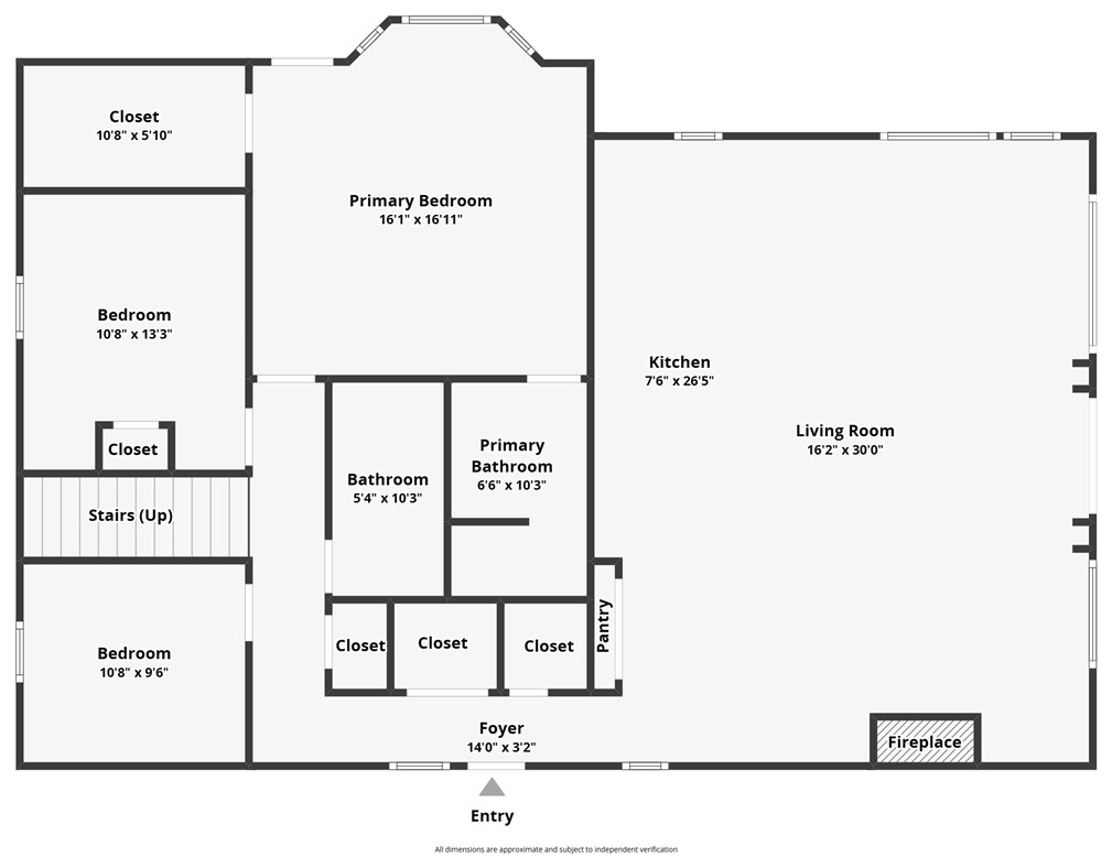
Inside, the open floor plan offers a spacious living area with wood-burning fireplace, seamlessly connected to the kitchen and dining areas. The kitchen boasts abundant cabinetry and a massive center island--the true heart of the home. Appliances include: Wall Oven (1 yr old), Cooktop (5 yrs), Microwave, Refrigerator and Dishwasher.
The owner's suite includes a bay-window sitting area, updated bath, walk-in closet, and private deck access to soak in breathtaking views of Cumberland Island and Jekyll Island across St. Andrew's Sound. Two additional bedrooms and a brand new guest bath complete the main level.
Upstairs, a loft with half bath provides flexible space for a 4th bedroom, office, or studio--plus walk-in attic storage. The entire ground level offers a garage/workshop area with 15 flood vents installed to reduce insurance costs (no water has ever entered). A detached carport and storage area complete this tranquil retreat. Experience the perfect blend of privacy and natural beauty, surrounded by serene marsh views and coastal wildlife. UTILITIES: Okefenokee Power, Private Well, Septic Tank. Internet: StarLink (wired for StarLink). Flood Insurance $660/yr. HVAC - 1 yr old. Easy to show - but will need listing agent present for access.

Overview

Property Status
For Sale
Lot Size
4.35 Acres
MLS ID
1657942
Property Type
Residential
Year Built
1997

Features & Amenities

Architecture Styles
Other
Water Frontage
Marsh, Other
View Description
Marsh View, Other, Water
Stories
2
Garage Spaces
2.0
Water Source
Private, Well
Utilites
Electricity Available, Septic Available
Roof
Metal, Shingle, Wood
Lot Features
1 to 5 Acres, Flood Zone, Level
Parking
Driveway, Underground, Other, RV Access/Parking, Unpaved
Heat Type
Central, Electric
Air Conditioning
Central Air, Electric
Laundry Room
In Hall, Washer Hookup, Dryer Hookup
Fireplace
Living Room, Wood Burning
Appliances
Some Electric Appliances, Built-In Oven, Cooktop, Dishwasher, Microwave, Refrigerator
Other Interior Features
Attic, Breakfast Bar, Cathedral Ceiling(s), Kitchen Island, Pantry, Ceiling Fan(s), Fireplace
Sewer
Septic Tank
Substructure
Pillar/Post/Pier, Raised
Security Features
Smoke Detector(s)
Other Exterior Features
Deck, Other, Porch, Unpaved Driveway
Elementary School
Woodbine Elem
Middle School
Camden County Middle
High School
Camden County
Sales Price
$585,000

Downloads

281 Marsh Breeze Lane

Schedule a Tour

We would love to help you see this beautiful home! As a full-service brokerage, we can help you tour. Please submit an offer, and answer questions about the buying process.

Thank you

for your interest in 281 Marsh Breeze Lane, Waverly, GA 31565

281 Marsh Breeze Lane
Navigate
281 Marsh Breeze Lane
explore in 3d
  • Enjoy miles of marsh and water views from this perfect private coastal getaway!

    Stephanie Webb

Mortgage Calculator

Estimate your monthly mortgage payment, including the principal and interest, property taxes, and HOA. Adjust the values to generate a more accurate rate.
$0,000 Your Payment 20 15 65
$0,000 Your Payment

I'm Interested In

281 Marsh Breeze Lane

or
  • CallErin Vaughn

    License #321425

    (912) 223-2201
  • Follow Us On Instagram